RLA Rodney Leon Architects
Project Team: Michael Caton

Image by Charles Dawley
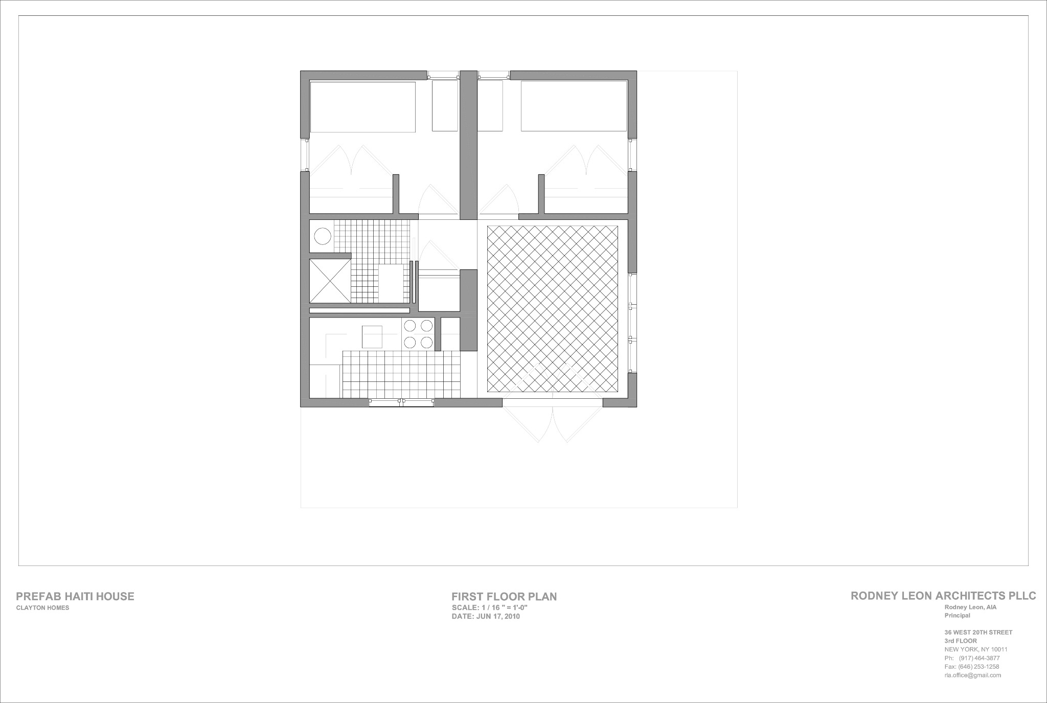
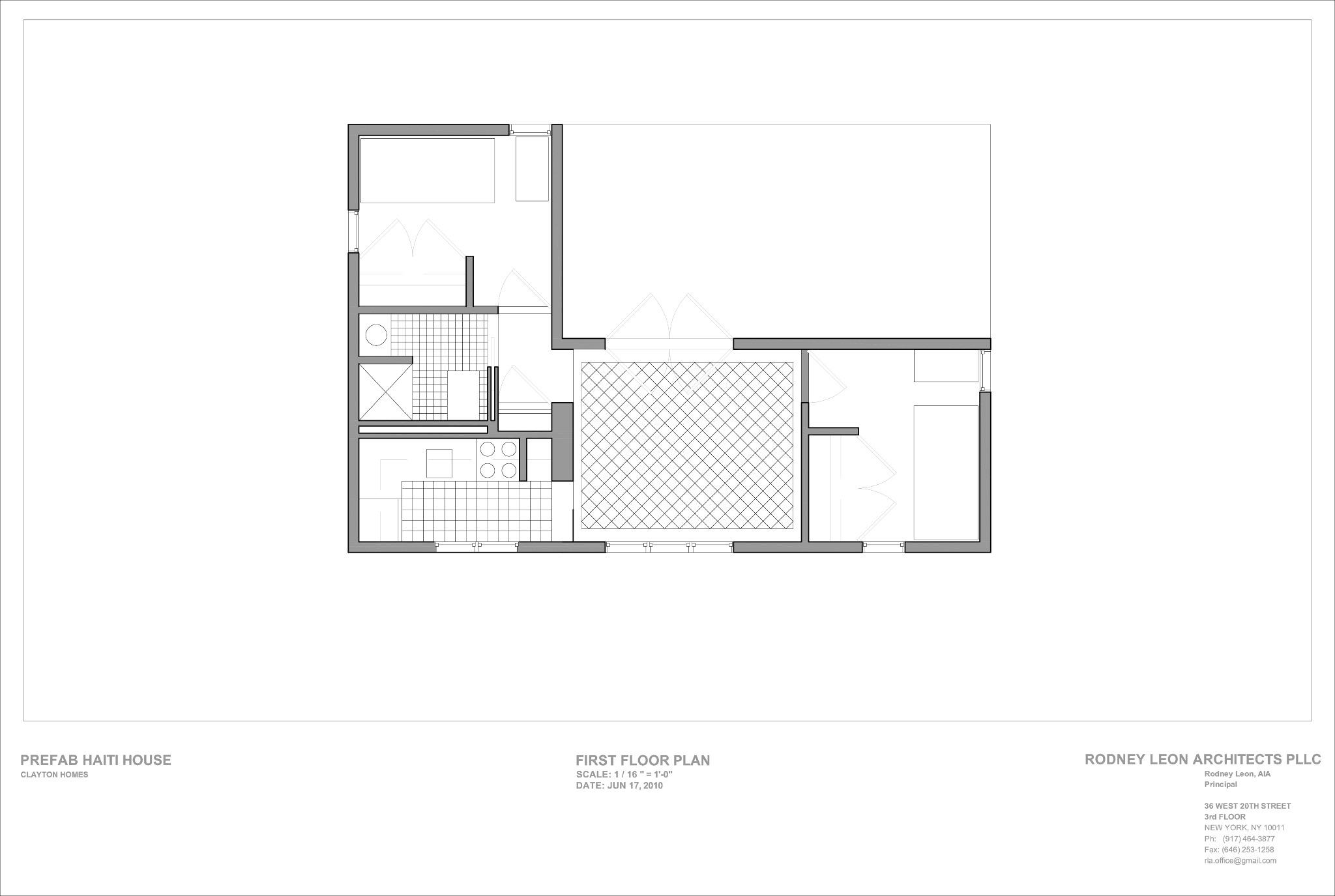
Following the disastrous earthquake in Haiti in 2010 several aid agencies and AEC professionals responded with great urgency to the successive crisis which afflicted the country. The Clinton Foundation and UNICEF along with several other leading philanthropic organizations teamed up with North American based modular housing manufacturer Clayton Homes to produce a mass housing community for a town north of the capital, Port of Prince. While the development was meant for immediate deployment it was not meant to function as temporary or simply disaster relief shelters. The homes/community in concept were meant to be an expandable system. With thousands of Haitian citizens displaced the primary concern was to restore basic living conditions.




Clayton homes established a partnership with New York based RLA, led by Haitian architect Rodney Leon, to develop a prefabricated housing system that had to meet the most basic conditions of living as a base, and meet stringent budget and transportation requirements. At RLA we've produced a series of 300, 400, and 500sf living units that house 1 living area, bath, kitchen, and 1-3 bedrooms. A unique perspective on Haiti's culture and climate allowed us to value engineer the project in a such a way that functions such as dinning become an extension to the exterior of the home.Capitalizing on the opportunities of the briefs constraints the home is a Steel frame wood and batten structure. While implementing sustainable strategies and taking cues from the architectural history of Haiti, no glazing is employed in the home. Wrought Iron grill work maintain conditions of safety while allowing for the passive colling of spaces, and simultaneously allowing for an interpretation of the existing architectural language through form as well as color.



Michael Caton, RA, AIA, LEED AP BD+C, CDTP